Havenstraat 60 Hillegom

Gratis waardebepaling?
Verkocht

Havenstraat 60 Hillegom Nederland

Omschrijving

Wonen in een karakteristieke, doch goed onderhouden tussenwoning midden in het dorpshart van Hillegom? Dan is dit een regelrechte buitenkans! De woning heeft liefst 81m2 woonoppervlakte met een strakke afwerking, een heerlijke woonkamer, mogelijkheid tot 2 slaapkamers en een heerlijk dakterras waar u heel de dag van de zon kunt genieten!

De woning is gelegen in het gezellige centrum van Hillegom, op loopafstand van winkels, restaurants en horecagelegenheden.

De entree
Via de voordeur betreedt u de ontvangsthal met toegang tot de woonkamer en de vaste trap naar de eerste verdieping. De rood/oranje plavuizenvloer is vanuit hier doorgelegd over de gehele begane grond m.u.v. de keuken en is voorzien van vloerverwarming. Daarnaast zijn de wanden afgewerkt met een combinatie van witgeschilderd Spachtelputz en lambrisering.

De woonkamer
De woonkamer is ruim van opzet en wordt zeer goed belicht door de grote raampartijen aan weerszijde van de woning. U heeft hier meer dan voldoende ruimte om een zithoek te plaatsen aan de voorzijde van de woning met aan de achterzijde een eetgedeelte. Zowel de wanden als het plafond zijn strak gestuct en afgewerkt met wit schilderwerk. Extra leuk detail is de sfeervolle houthaard die de prachtige woonkamer helemaal afmaakt! Daarnaast heeft u een zeer ruime trapkast en biedt de woonkamer ook plaats voor de meterkast.

De keuken
Vanuit de woonkamer betreedt u deze prachtige, in de uitbouw gesitueerde keuken, die volledig in lijn staat met hete karakteristiek van woning. De keuken heeft een landelijke uitstraling in een korte U-opstelling, hierdoor heeft u aan werk- en opbergruimte absoluut geen gebrek! Het antracietkleurige werkblad heeft een klassieke spoelbak en een 4-pits gaskookplaat met een extra wokbrander. Om de gaskooplaat is een sierschouw geplaatst waarin de afzuigkap netjes in is afgewerkt. De vele opbergkasten zijn voorzien van crèmekleurige panelen en verschillende inbouwapparatuur. Zo zijn er een vaatwasser en een oven aanwezig. De grote raampartijen en de loopdeur naar de tuin zorgen voor een zeer prettige lichtinval in de keuken.

De bijkeuken
Via de keuken betreedt u de praktische bijkeuken ruime biedt voor een koel en vriescombinatie, de wasmachine en eventueel een droger. Daarnaast vindt u hier de cv- installatie en heeft u via de bijkeuken toegang tot de badkamer.

De badkamer
De badkamer is half betegeld met zowel een wit gemarmerde vloer- als wandtegel. De ruimte heeft een toilet, een wastafel, een radiator en een wastafel. De ventilatie wordt gereguleerd door de 2 natuurlijke ventilatie roosters.

De tuin
Via de bijkeuken of de achterom betreedt u deze zeer privé gelegen achtertuin op het zuidwesten. De tuin is volledig bestraat en is daardoor zeer onderhoudsvriendelijk. Daarnaast heeft de achterom een overkapping waardoor u uw (brom)fiets altijd droog kunt plaatsen.

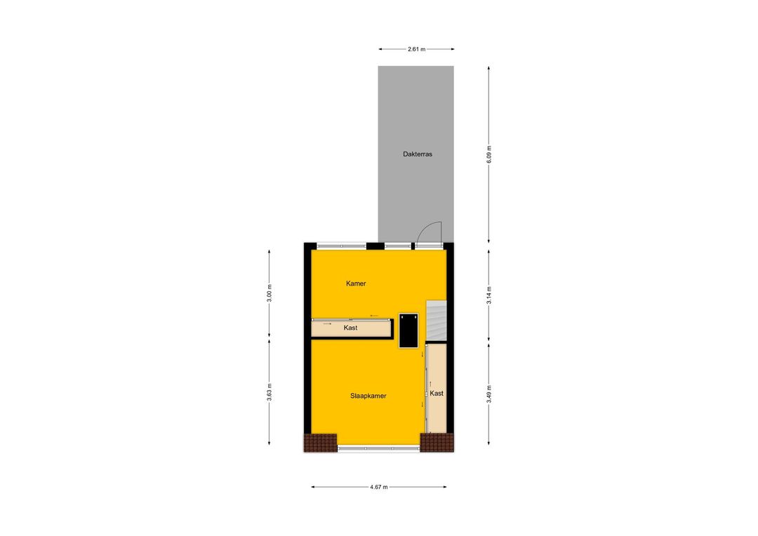
De tweede woonlaag
Middels de vaste trap op de begane grond betreedt u de open 2e verdieping met werk- en slaapgedeelte. De verdieping is geheel afgewerkt met een lichteiken laminaatvloer en een lichte afwerking op zowel de strak gestucte wanden als het gestucte plafond met lichtspots. Het slaapgedeelte is gesitueerd aan de voorzijde van de woning en wordt onderbroken door een ruime inbouwkast naar de achterzijde van de woning. Hier heeft u nog een praktische werkruimte. De verdieping is ruim van opzet waardoor u middels een paar aanpassingen ook de mogelijkheid heeft om een 2e slaapkamer te creëren. Aan licht heeft u hier geen gebrek, dit door de aanwezige raampartijen in de gevel en de grote raampartijen in het dakkapel.
Extra handig is de opbergruimte die u heeft in de zolder, welke bereikbaar is met een vlizotrap.

Het dakterras
Als kers op de taart heeft u een heerlijk dakterras van maar liefst 16m2 groot gelegen op het zuidwesten. Door de gunstige ligging in de wijk met amper hoge bebouwing kunt u hier de hele dag van het mooie weer genieten, wie wil dat nou niet!?

Deze woning is op korte termijn beschikbaar!

– Karakteristieke tussenwoning met 81m2 woonoppervlakte
– Ruime woonkamer met veel licht
– Vloerverwarming op begane grond
– Mogelijkheid voor 2e slaapkamer op 1e verdieping
– Royaal dakterras met hele dag zon
– Privé gelegen achtertuin op het zuidwesten
– Extra bergruimte in vlizozolder
– Volledig dubbelglas en houten kozijnen
– Midden in het centrum, dagelijkse voorzieningen binnen handbereik
– Nabij uitvalswegen richting Schiphol, Hoofddorp en Haarlem

Lees de volledige omschrijving

Contact

Hoofddorp/Haarlem
023-2070001

Bollenstreek
0252-428096

Leiden
071-2058058

Kenmerken

Algemeen

Aangeboden sinds
6+ maanden
Status
Verkocht
Aanvaarding
In overleg
Soort woonhuis
Eengezinswoning, tussenwoning
Soort bouw
Bestaande bouw
Bouwjaar
1906
Soort dak
Pannen
Ligging
In centrum, in woonwijk

Oppervlakten en inhoud

Wonen
81 m²
Gebouwgebonden Buitenruimte
16 m²
Perceel
101 m²
Inhoud
280 m³

Indeling

Aantal kamers
2 kamers (1 slaapkamer)
Aantal badkamers
1 badkamer
Badkamervoorzieningen
Douche, toilet, wastafel
Aantal woonlagen
2
Voorzieningen
Natuurlijke ventilatie

Energie

Energielabel
C
Isolatie
Dubbel glas
Verwarming
Cv ketel, vloerverwarming gedeeltelijk
Warm water
Cv ketel
Cv-ketel
Intergas (gas gestookt combiketel uit , eigendom)

Kadastrale gegevens

Perceelnaam
Hillegom C 671
Oppervlakte
101 m²
Eigendomssituatie
Volle eigendom
Perceel
HLG01-C-671

Buitenruimte

Tuin
Achtertuin
Achtertuin
15 m²
Ligging tuin
Zuidwest bereikbaar via achterom

Parkeergelegenheid

Soort parkeergelegenheid
Openbaar parkeren
Bekijk alle kenmerken