Binnenhof 36 Noordwijk

Gratis waardebepaling?
Verkocht

Binnenhof 36 Noordwijk Nederland

Omschrijving

Midden in het dorpshart van Noordwijk-Binnen staat deze prachtige 5-kamer tussenwoning(energielabel A) met 170m2 woonoppervlakte! De woning uit 2008 is door de jaren heen keurig onderhouden en is zeer netjes afgewerkt. Met een royale woonkamer, een moderne keuken(2020) & badkamer(2020) én 4 ruime slaapkamers waaronder een prachtige open ruimte met talloze mogelijkheden, biedt deze woning dan ook ontzettend veel leef comfort. Wat te denken van de heerlijke achtertuin van 63m2 groot met een zeer privé gelegen ligging op het Zuidwesten waar u de hele dag van het mooie weer kunt genieten!

De locatie is ook nog eens top! Zo kunt u voor al uw dagelijkse voorzieningen terecht in het om de hoek gelegen winkelcentrum van Noordwijk-Binnen. Daarnaast begeeft u zich binnen 5 minuten fietsen in het Zee- en Duingebied, wie wil dat nou niet?! Ook (basis)scholen, kinderopvangcentra en sportaccommodaties zijn allen zeer goed te bereiken. Met uitvalswegen richting Leiden, Den Haag en Haarlem heeft u eveneens meer dan voldoende uitval mogelijkheden voor woon-, werk- en recreatieverkeer.

Entree
Via de voordeur betreedt u de ruim opgezette ontvangsthal met toegang tot de meterkast, het toilet, de vaste trap naar de eerste verdieping en de woonkamer met open keuken. Vanuit de ontvangsthal is de eikenhouten (visgraat) parketvloer doorgelegd over de gehele verdieping m.u.v. van het toilet. De strak gestucte wanden zijn afgewerkt met wit schilderwerk en voorzien van taupekleurige wandtegels als lambrisering.

De woonkamer
Middels de fraaie deur met glas-in-lood betreedt u deze royale living met ontzettend veel leef comfort! Wat direct opvalt is dat de woonkamer prachtig wordt belicht door de vrijwel gehele glazen pui met 2 openslaande deuren naar de achtertuin én de grote raampartijen aan de voorzijde van de woning. Met een diepte van ruim 10m2 heeft u hier dan ook meer dan voldoende ruimte om een ruime zit- en eethoek te plaatsen. Leuk detail is de sfeervolle openhaard waar u gezellig aan kunt zitten! Met een ruime trapkast heeft u ook nog eens extra bergruimte, hoe ideaal is dat? Ook in de woonkamer zijn zowel de wanden als het plafond afwerkt met strak stuc- en schilderwerk.

De keuken
Deze prachtige en tevens moderne keuken uit 2020 biedt alles wat u nodig heeft! De keuken heeft met een ruime L-opstelling en een losse kastenopstelling dan ook meer dan voldoende werk- en opbergruimte. Het antracietkleurige werkblad is van natuursteen, heeft een rvs-spoelbak met Quooker en een 4-pits Bora inductiekookplaat met ingebouwde afzuiginstallatie. Aan de L-opstelling heeft u een bar en er is gekozen voor witte panelen aan de opbergkasten. Daarnaast heeft het spoelgedeelte een ingebouwde vaatwasser. De losse kastenopstelling heeft stijlvolle bruingrijze panelen en verschillende inbouwapparatuur: een combi-oven, een stoomoven, een koelkast en een vriezer zijn dan ook allemaal terug te vinden! De keuken is gesitueerd aan de voorzijde van de woning waardoor u door de grote raampartijen een zeer prettige lichtinval heeft.

De eerste verdieping
Middels de vaste trap op de begane grond betreedt u de ruime overloop op de eerste verdieping. Vanuit hier heeft u toegang tot de 2 slaapkamers, de badkamer, een separate toiletruimte en de vaste trap naar de 2e verdieping. De eikenhouten parketvloer (visgraat) is vanuit hier doorgelegd over de gehele verdieping m.u.v. van de badkamer. Daarnaast heeft de gehele verdieping vliesbehang, afgewerkt met strak schilderwerk.

De slaapkamers
De masterbedroom is gesitueerd aan de achterzijde van de woning en is zeer ruim van formaat! Aan de wanden is er gekozen voor een combinatie wit, groen en grijs schilderwerk op het nette vliesbehang. De kamer heeft 4 grote raampartijen waarvan 2 draaikiepramen en u heeft met een kamerbrede inbouwkast ook meer dan voldoende mogelijkheden om uw garderobe netjes op te bergen.

Slaapkamer 2 is gesitueerd aan de voorzijde en heeft aan de wanden dezelfde kleurstelling als de masterbedroom. Ook hier is een ruime inbouwkast met schuifdeuren aanwezig en heeft u aan licht geen gebrek door de 4 aanwezige raampartijen met 2 draaikiepramen. Daarnaast heeft deze slaapkamer een wastafel met een wit betegelde achterwand.

De badkamer
De badkamer (2020) heeft een zeer warme, doch moderne uitstraling doordat er is gekozen voor bruingrijze vloer- en wandtegels in combinatie met strak wit stucwerk. De badkamer heeft een royale inloopdouche met regendouche, een badkamermeubel met dubbele wastafel, en designspiegel met ledverlichting, een heerlijk ligbad en een designradiator. U kunt de ruimte snel en eenvoudig ventileren middels het mechanische ventilatiesysteem.

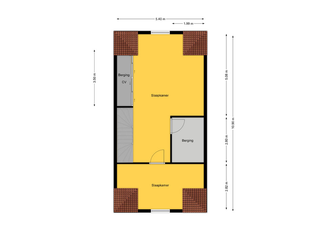
De tweede verdieping
Een absolute bonus aan deze woning is deze ruim opgezette bovenverdieping met talloze mogelijkheden: een thuisbioscoop, een kantoorruimte, prakrijk, hobbykamer of een ruimte waar u heerlijk kunt ontspannen behoren dan ook allemaal tot één van de vele opties die u hier heeft! Het plafond heeft stijlvolle houtbalken waarvan de tussenschotten zijn verlaagd en voorzien van inbouwspots en geeft een prachtige uitstraling aan deze ruimte.

Wat te denken van het aanwezige draaikiepraam die de ruimte niet alleen van daglicht voorziet maar ook nog eens een prachtig uitzicht geeft over het pittoreske en karakteristieke dorpshart van Noordwijk-Binnen en naar de duinen!

Daarnaast heeft u 2 royale bergruimtes: 1 van 5,5 m2 groot waar u zeer veel opbergruimte heeft en nog een extra inbouwkast met schuifdeuren. Deze inbouwkast is tevens voorzien van de aansluiting voor uw wasmachine, droger en de cv-installatie.

Ook is de 3e slaapkamer toegankelijk via deze ruimte en deze is gesitueerd aan de voorzijde van de woning. Wederom een zeer ruime slaapkamer met een strakke wandafwerking en een bijzonder prettige lichtinval!

De tuin
De tuin betreedt u middels de 2 openslaande deuren vanuit de woonkamer en via de achterom. Door de gunstige ligging in de wijk en de ligging op het Zuidwesten kunt u hier de gehele dag, zeer privé gelegen, van het mooie weer genieten! De tuin is gedeeltelijk bestraat, heeft een grasveldje, een aantal plantenborders en verschillende fruitbomen. Daarnaast heeft u een eigen berging (c.a. 5m2 groot) voorzien van elektra en een doorloop naar de achterom.

Wat maakt deze woning zo leuk?
– Zeer nette 5-kamer tussenwoning woning uit 2008
– 170m2 woonoppervlakte
– Zeer royale living
– Moderne keuken uit 2020
– 3 ruime slaapkamers en prachtig ruime voorkamer op 2e verdieping
– Nette badkamer uit 2020
– Beneden verdieping volledig gestuct
– Volledig dubbelglas en houten kozijnen
– Zonnige en tevens privé gelegen achtertuin
– Openbaar parkeren
– OPTIONEEL: Vaste parkeerplaats in parkeergarage aan overzijde straat
– Midden in het dorpshart van Noordwijk-Binnen
– Zee- en Duingebied binnen 5 minuten fietsen
– (Basis)scholen, kinderopvangcentra en sportaccommodaties ‘om de hoek’
– Uitvalswegen richting Leiden, Den Haag en Haarlem

Lees de volledige omschrijving

Contact

Hoofddorp/Haarlem
023-2070001

Bollenstreek
0252-428096

Leiden
071-2058058

Kenmerken

Algemeen

Aangeboden sinds
6+ maanden
Status
Verkocht
Aanvaarding
In overleg
Soort woonhuis
Eengezinswoning, tussenwoning
Soort bouw
Bestaande bouw
Bouwjaar
2008
Ligging
Aan rustige weg, in centrum, in woonwijk, vrij uitzicht

Oppervlakten en inhoud

Wonen
170 m²
Overige inpandige ruimte
5 m²
Externe bergruimte
5 m²
Perceel
134 m²
Inhoud
540 m³

Indeling

Aantal kamers
5 kamers (4 slaapkamers)
Aantal badkamers
1 badkamer
Badkamervoorzieningen
Douche, dubbele wastafel, inloopdouche, ligbad, wastafel, wastafelmeubel
Aantal woonlagen
3
Voorzieningen
Buitenzonwering, mechanische ventilatie

Energie

Energielabel
A
Isolatie
Dakisolatie, dubbel glas, muurisolatie, vloerisolatie, volledig geisoleerd
Verwarming
Cv ketel
Warm water
Cv ketel
Cv-ketel
Intergas Prestige (gas gestookt combiketel uit 2008, eigendom)

Kadastrale gegevens

Perceelnaam
Noordwijk F 6184
Oppervlakte
134 m²
Eigendomssituatie
Volle eigendom
Perceel
NWK02-F-6184

Buitenruimte

Tuin
Achtertuin
Achtertuin
62 m²
Ligging tuin
Zuidwest bereikbaar via achterom

Parkeergelegenheid

Soort parkeergelegenheid
Openbaar parkeren, parkeervergunningen
Bekijk alle kenmerken